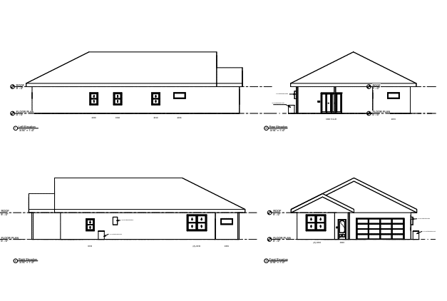
This request is for a $260,000 new construction loan secured by two to-be-built single-family homes (to be built) and two additional neighboring subdivided lots pledged as collateral. The first will consist of three bedrooms, two bathrooms, approximately 1,704 square feet of living area, and a two-car garage. The second will include three bedrooms, 2.5 bathrooms, approximately 1,777 heated square feet, and a two-car garage. Borrower primary exit strategy is to sell the property after completion.
